Casa cu garaj acces auto 2 apartamente separate zona Piata Cluj Sibiu

Casa cu garaj acces auto 2 apartamente separate zona Piata Cluj Sibiu - 1
1 / 10

279.900 €

Sibiu, Sibiu

Actualizat: 2 aprilie 2026

Descriere

Cauti o casa spatioasa in Sibiu pentru tine si familia ta?Vrei sa faci o investitie sa ai un venit pasiv garantat ?
TABOO Imobiliare iti propune aceasta casa/vila de vanzare cu 5 camere, situata in zona Piata Cluj, Sibiu – o locatie apreciata pentru accesibilitate si liniste.
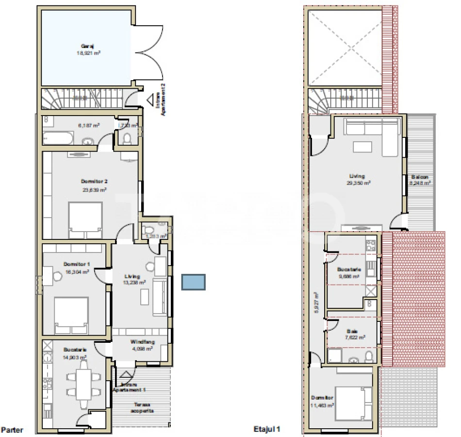
Imobilul are o suprafata utila de 145 mp si este compartimentat inteligent in 2 apartamente complet separate, fiecare cu intrare proprie, fiind ideal atat pentru locuit, cat si pentru investitie (inchiriere sau doua familii).
Suprafata construita este de 207 mp, amplasata pe un teren cu suprafata totala generoasa, din care rezulta o curte libera de aproximativ 198-199 mp.
Compartimentare:
Apartament Parter (81 mp utili) – intrare separata:

3 camere decomandate
2 bai
bucatarie
hol

Apartament Mansarda (64 mp utili + balcon 8 mp) – intrare separata:

2 camere
bucatarie
baie
balcon

Compartimentare generala casa:

Parter: hol, living, 2 dormitoare, 2 bai , bucatarie, 
Etaj/Mansarda: hol, living, dormitor, baie,bucatarie, balcon
Pod: spatiu pentru depozitare

Proprietatea dispune de:

curte comuna separata in acte
acces auto in curte
garaj
curte libera amenajata cu zona de gratar si relaxare
posibilitate parcare in curte

Dotari si utilitati:

constructie din caramida
casa izolata termic
centrale termice proprii pentru fiecare apartament si calorifere
aer conditionat
curent electric, apa, canalizare, gaz, internet

Finisaje:
usa intrare pvc
usi interioare celulare
tamplarie pvc cu geam termopan
podele din parchet si gresie
pereti finisati cu vopsea lavabila si faianta

Casa se preda complet mobilata si utilata, fiecare apartament fiind gata de utilizare imediata.
In exterior regasim o curte libera de aproximativ 199 mp, ideala pentru relaxare, zona de joaca pentru copii sau amenajare spatiu verde.
Imobilul este situat in apropiere de, institutii publice, banci, scoli si statii pentru mijloace de transport in comun.
Aceasta proprietate reprezinta o oportunitate excelenta pentru doua familii sau pentru investitie, datorita celor doua apartamente independente cu acces separat.
Pentru mai multe detalii si programarea unei vizionari, contacteaza TABOO Imobiliare.

Pret: 279.900€
Cod ofertă / ID: P26453

Trimite acum link-ul unui prieten pe:

Contactează vânzătorul

Avatar TABOO.ro

TABOO.ro

Companie

Pe ZUP din 30 septembrie 2025

Trebuie să te autentifici pentru a putea trimite mesaj
Vezi toate anunțurile utilizatorului

Localizare

Sibiu, Sibiu

Ați vizualizat anunțul: Casa cu garaj acces auto 2 apartamente separate zona Piata Cluj Sibiu