Casa individuala 5 camere, LA ROSU, de vanzare in Sacalaz
89.990 €
Săcălaz, Timiș
Actualizat: 12 februarie 2026
Descriere
Casa individuala cu 5 camere de vanzare in localitatea Sacalaz, zona Central.
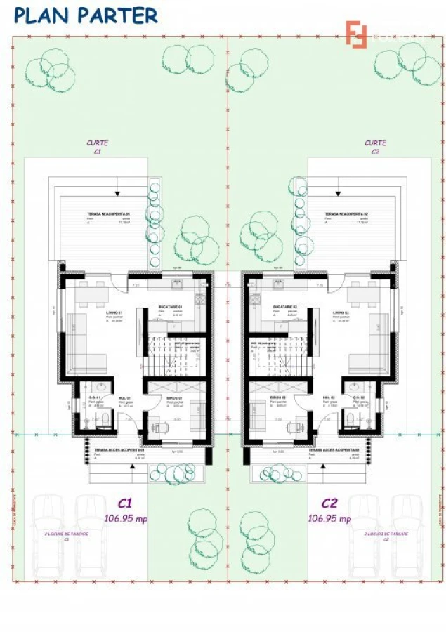
FOXFORT propune spre vanzare o casa individuala, la rosu, cu un regim de inaltime Parter + 1 Etaj, situata in Sacalaz, zona Central, avand un numar de 5 camere, cu o suprafata utila de 107 mp si teren 300 mp. Anul constructiei este 2025, structura beton, material zidarie caramida. Imobilul dispune de urmatoarele utilitati: curent electric si gaz langa proprietate.
Compartimentarea este dispusa dupa cum urmeaza:
- Parter: hol, living, baie, bucatarie, debara, dormitor/birou, 2 terase;
- Etaj: hol, 3 dormitoare, baie, balcon.
Casa se vinde la rosu, iar pentru cei care doresc, imobilul se poate preda complet finisat, detaliile privind pretul putand fi discutate ulterior.
Pretul este de 89.990€ + comisionul standard al agentiei.
Se accepta ca si modalitate de plata surse proprii sau credit bancar.
Indicator performanta energetica: Clasa A
ID intern: V8229
Trimite acum link-ul unui prieten pe:
Contactează vânzătorul
Rovinaru Laura
Companie
Pe ZUP din 12 ianuarie 2026
Localizare
Ați vizualizat anunțul: Casa individuala 5 camere, LA ROSU, de vanzare in Sacalaz
Localizare
Ați vizualizat anunțul: Casa individuala 5 camere, LA ROSU, de vanzare in Sacalaz
Rovinaru Laura
Companie
89.990 €
Rovinaru Laura
Pe ZUP din 12 ianuarie 2026
Trimite acum link-ul unui prieten pe: