Casa individuala de vanzare 3 camere 2 bai garaj Piata Cluj

Casa individuala de vanzare 3 camere 2 bai garaj Piata Cluj - Video
1 / 11

188.900 €

Sibiu, Sibiu

Actualizat: 10 martie 2026

Descriere

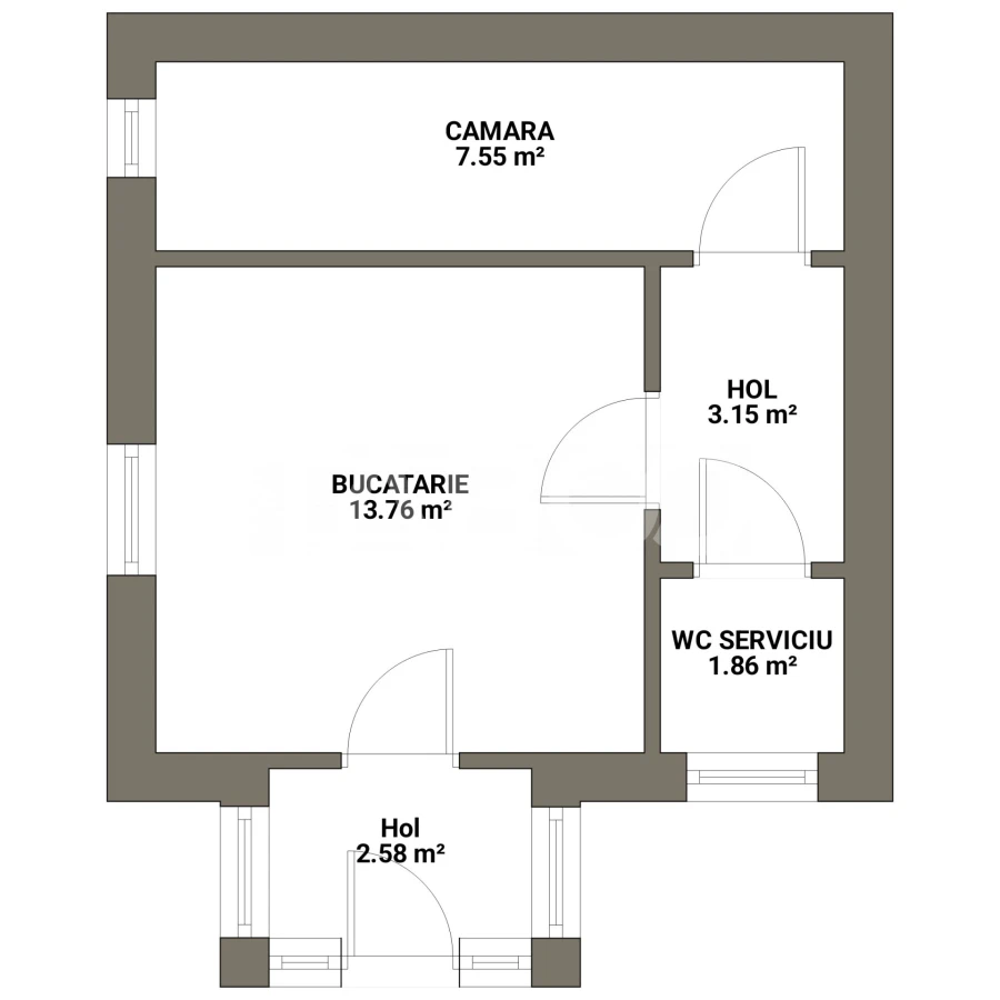
Doresti sa te muti intr-o zona mai linistita si retrasa? TABOO Imobiliare iti propune aceasta casa de vanzare cu 3 camere in zona Piata Cluj, Sibiu. Casa de vanzare din Sibiu este o casa de tip individuala, cu un regim de inaltime Demisol + Parter. Casa este compartimentata astfel:
~ Demisol: hol, bucatarie, WC serviciu, camara;
~ Parter: hol, living, baie, dormitor cu balcon, dormitor, spatiu depozitare si acces pod
~ Pod depozitare.
Casa a fost construita in anul 1970, ea fiind renovata in 2025, cu o structura din caramida si sistem de incalzire cu centrala proprie, calorifere. Suprafata construita a casei este de 118mp, suprafata utila 98 mp, iar terenul are o suprafata totala de 434 mp. Casa este mobilata complet si utilata: aragaz cu cuptor pe gaz, masina de spalat rufe, frigider cu congelator, cuptor cu microunde. Casa are o curte libera 292 mp cu 2 locuri de parcare, 1 garaj si suficient loc pentru zona de joaca a copiilor, terasa de relaxare si spatiu de depozitare.
Finisajele interioare sunt clasice:
~ Usa intrare: pvc; 
~ Usi interioare: lemn; 
~ Tamplarie ferestre: pvc, termopan; 
~ Podele: parchet, gresie, mocheta; 
~ Izolatii exterior: exterior.

Pret: 188.900€
Cod ofertă / ID: P26246

Trimite acum link-ul unui prieten pe:

Contactează vânzătorul

Avatar TABOO.ro

TABOO.ro

Companie

Pe ZUP din 30 septembrie 2025

Trebuie să te autentifici pentru a putea trimite mesaj
Vezi toate anunțurile utilizatorului

Localizare

Sibiu, Sibiu

Ați vizualizat anunțul: Casa individuala de vanzare 3 camere 2 bai garaj Piata Cluj