Casa individuala de vanzare cu terasa teren 320 mp zona Centrala Sibiu

Casa individuala de vanzare cu terasa teren 320 mp zona Centrala Sibiu - 1
1 / 10

494.900 €

Sibiu, Sibiu

Actualizat: 16 decembrie 2025

Descriere

Iti doresti o casa individuala generoasa intr-o zona buna a orasului? Aceasta casa de vanzare este situata in zona centrala a orasului Sibiu, o zona linistita si cu acces facil catre toate punctele centrale si de interes public ale orasului.
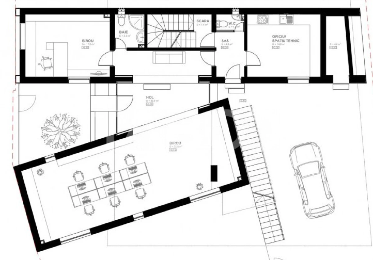
Terenul are o suprafata totala de 320 mp din care 160 mp teren liber iar casa este compartimentata astfel:
- La subsol se afla 2 camere de depozitare a cate 10 mp fiecare, si o crama de 17 mp;
- Parterul este compus dintr-o camera spatioasa cu suprafata de 53 mp, fiind pretabila pentru spatiu de birou, camera de zi sau living, o camera de birou de 17 mp, o baie, un hol mare de 20 mp, debara, toaleta de serviciu si terasa;
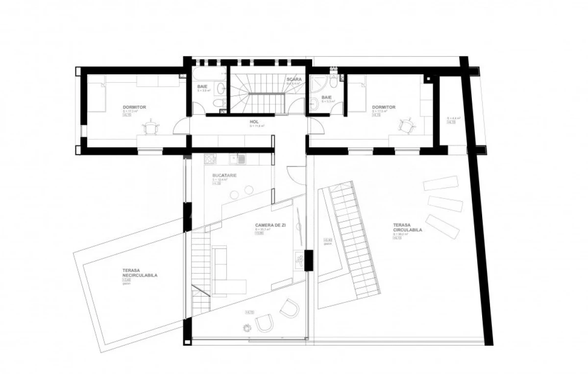
- Etajul 1 va ofera accesul catre cele 2 dormitoare decomandate in suprafata de 17 mp fiecare, un living generos de 33 mp, bucatarie, 2 bai, si o terasa spatioasa in suprafata de 58 mp;
- Etajul al 2-lea confera accesul catre dormitorul matrimonial in suprafata de 26 mp, dressing, baie de 7 mp, terasa.
Predarea se va face la stadiul de semifinisat in exterior, cu parterul finalizat, la etajul 1 partea de dormitoare si bai sunt functionale, iar la etajul 2 finisajele interioare nu au fost finalizate lasand la alegerea viitorului beneficiar modul in care se va amenaja.

Casa dispune de urmatoarele imbunatatiri precum parchet, gresie, faianta, ferestre din PVC-termopan, usi celulare, centrala termica proprie si calorifere. Casa mai dispunde si de o curte privata cu acces auto, carport unde se poate parca masina, iar curtea dispune de o suprafata libera de 160 mp. Casa poate fi recompartimentata in functie de gusturile fiecaruia, in functie de necesitati. Imobilul este situat pe o strada iluminata, avand 2 fronturi la strazi diferite, iar in apropiere se afla mijloace de transport in comun, parcuri, restaurante, scoli, spatii verzi, spatii comerciale.

Pret: 494.900€
Cod ofertă / ID: P15105

Trimite acum link-ul unui prieten pe:

Contactează vânzătorul

Avatar TABOO.ro

TABOO.ro

Companie

Pe ZUP din 30 septembrie 2025

Trebuie să te autentifici pentru a putea trimite mesaj
Vezi toate anunțurile utilizatorului

Localizare

Sibiu, Sibiu

Ați vizualizat anunțul: Casa individuala de vanzare cu terasa teren 320 mp zona Centrala Sibiu