Casa individuala pe un singur nivel cu 3 camere teren 300 mp Cristian

Casa individuala pe un singur nivel cu 3 camere teren 300 mp Cristian - 1
1 / 10

175.000 €

Cristian, Sibiu

Actualizat: 16 decembrie 2025

Descriere

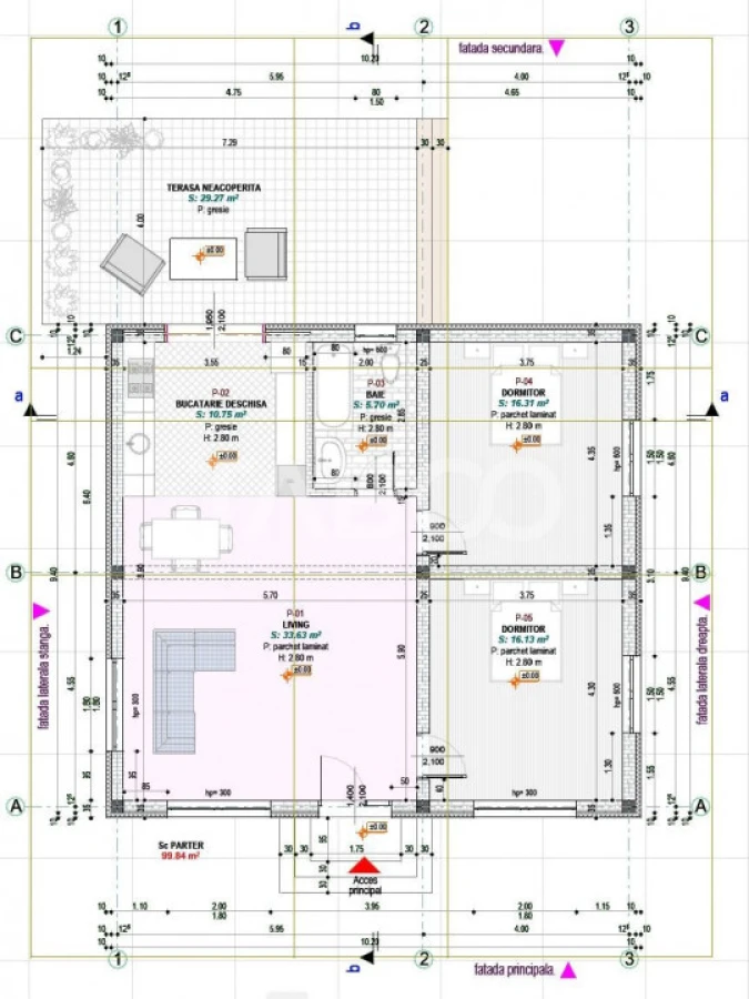
Casa individuala de vanzare pe un singur nivel de vanzare in Cristian, Sibiu, amplasata pe un teren cu suprafata de 300 mp, ideala pentru cei care isi doresc confort si intimitate.

Casa se va preda la stadiul de cheie exterior si alb interior, cu suprafata utila de 83 mp, o locuinta cocheta, compartimentata astfel: 
~ Living open space cu bucatarie cu suprafata de 44 mp;
~ Doua dormitoare spatioase, 16 mp fiecare;
~ Baie cu geam si suficient loc pentru cada;
~ Terasa de 29 mp, unde avem trase utilitati, acolo fiind gandita zona de grill;
~ Pod mansardabil, cu acces din exterior.

Terenul liber masoara 205 mp, curtea urmand sa fie amenajata cu gazon si cu dale de beton, fiind loc suficient in fata casei pentru a parca o masina dar si pentru a amenaja o zona de joaca pentru copii sau multe altele.

Pret: 175.000€
Cod ofertă / ID: P21566

Trimite acum link-ul unui prieten pe:

Contactează vânzătorul

Avatar TABOO.ro

TABOO.ro

Companie

Pe ZUP din 30 septembrie 2025

Trebuie să te autentifici pentru a putea trimite mesaj
Vezi toate anunțurile utilizatorului

Localizare

Cristian, Sibiu

Ați vizualizat anunțul: Casa individuala pe un singur nivel cu 3 camere teren 300 mp Cristian