Casa individuala pe un singur nivel - zona linistita si retrasa

Casa individuala pe un singur nivel - zona linistita si retrasa - Video
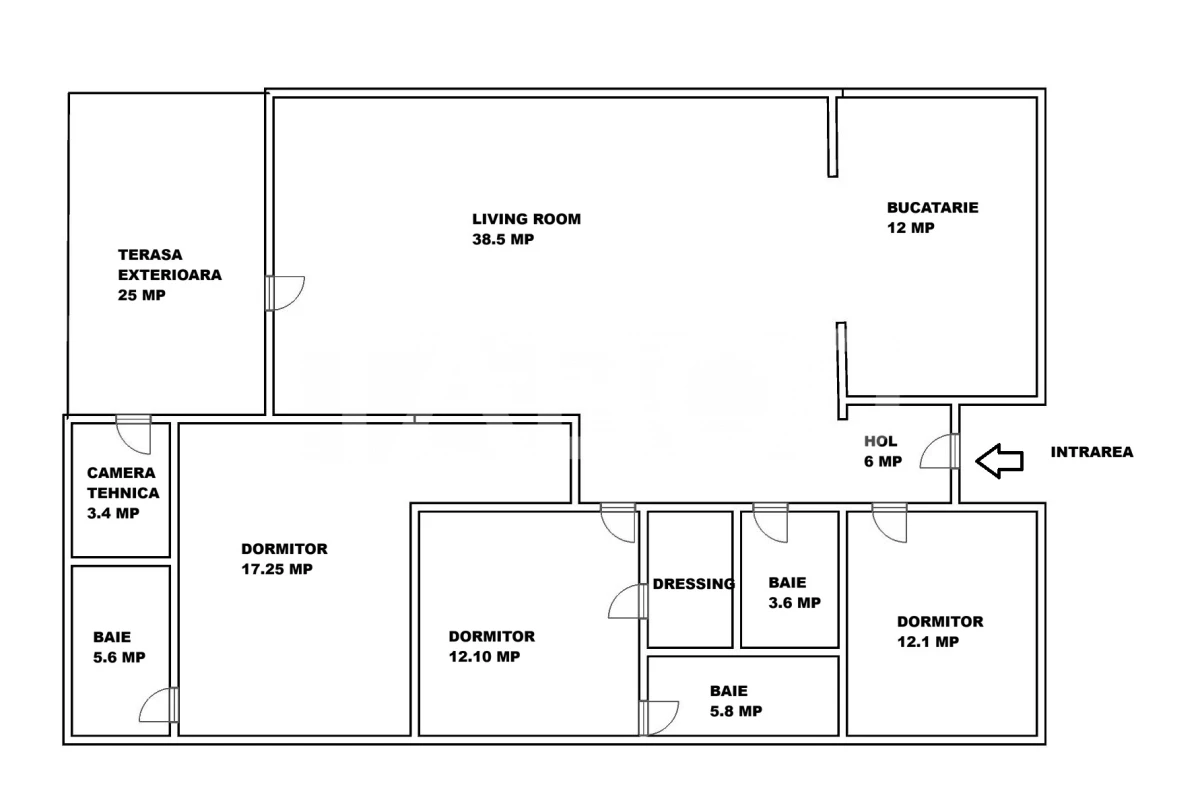
1 / 11

220.000 €

Șura Mare, Sibiu

Actualizat: 27 martie 2026

Descriere

Casa se preteaza unei familii cu copii care doreste sa se bucure de spatiu verde si loc de joaca in propria curte. Terenul este generos si este dispus in spatele si lateralul casei.
Si mai sunt niste vecini foarte cumsecade, case frumoase si elegante, liniste si intimitate dincolo de asteptarile dumneavoastra, aer curat si racoare. Foarte multa racoare, in asa fel incat ai putea crede ca te afli intr-o vizita la Predeal.
O casa individuala moderna, amplasata pe o strada privata din Sura Mare cu o suprafata utila de 122 mp, construita in 2025.  Casa se preda la stadiul de alb la interior si cheie la exterior. Aceasta este compartimentata astfel: living spatios si luminos, cu o bucatarie semi-deschisa si 3 dormitoare, iar la doua din ele puteti sa va bucurati de baie proprie si dressing incapator.
Exista si cea de-a 3 baie care deserveste restul casei. In zona din spate regasim o terasa generoasa de 20 mp si camera tehnica. Teren total de 390 metri si teren liber de 219 metri.
La exterior scapati de grija parcarii deoarece dispuneti de parcare proprie amenajata in fata casei.
Facilitatile si utilitatile acestei proprietati care o fac sa devina si mai interesanta sunt: sistemul de încalzire in pardoseala, (separat pe fiecare camera); curentul trifazic, racordata la apa,curent, canalizare, gaz.
La exterior proprietatea este izolata cu polistiren de 10 cm, curtea si aleea pietonala sunt amenajate.
Casa este construita pentru a va crea cele mai frumoase momente fiind situata intr-o zona linistita dar cu acces facil catre zone comerciale, scoli, transport in comun.

Pret: 220.000€
Cod ofertă / ID: P26398

Trimite acum link-ul unui prieten pe:

Contactează vânzătorul

Avatar TABOO.ro

TABOO.ro

Companie

Pe ZUP din 30 septembrie 2025

Trebuie să te autentifici pentru a putea trimite mesaj
Vezi toate anunțurile utilizatorului

Localizare

Șura Mare, Sibiu

Ați vizualizat anunțul: Casa individuala pe un singur nivel - zona linistita si retrasa