Comision 0% Parcela teren Mosnita - Toate utilitatile + Asfalt
72.990 €
Moșnița Nouă, Timiș
Actualizat: 12 februarie 2026
Descriere
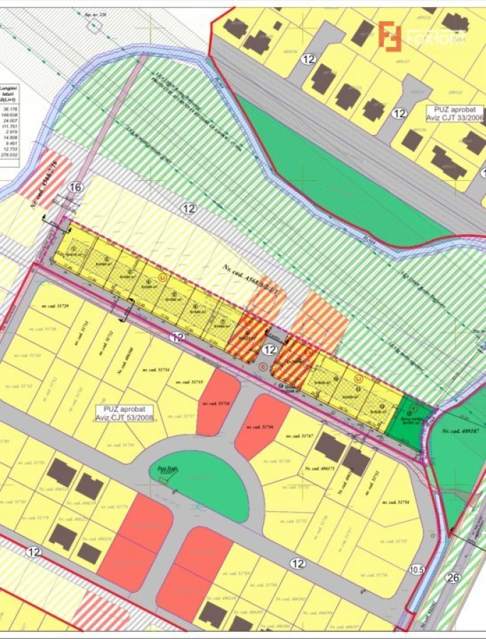
COMISION 0% Parcele Mosnita / Calea Medves cu toate utilitatile + Asfalt
FOXFORT propune parcele de teren intravilan pretabil constructii de duplex sau casa individuala de vanzare in Mosnita avand 540 mp si front de 18 ml. Caracteristici teren: regim de inaltime permis Parter + 1 Etaj cu POT de 30%.
Utilitati: curent electric, apa, canalizare, gaz si drum asfaltat. Accesul la parcele se face direct din Calea Medves.
Mai este 1 parcela disponibila.
Pretul este: 72.990€ - Comision 0%.
ID intern: V8699
Trimite acum link-ul unui prieten pe:
Contactează vânzătorul
Usurelu Nicu
Companie
Pe ZUP din 12 ianuarie 2026
Localizare
Ați vizualizat anunțul: Comision 0% Parcela teren Mosnita - Toate utilitatile + Asfalt
Localizare
Ați vizualizat anunțul: Comision 0% Parcela teren Mosnita - Toate utilitatile + Asfalt
Usurelu Nicu
Companie
72.990 €
Usurelu Nicu
Pe ZUP din 12 ianuarie 2026
Trimite acum link-ul unui prieten pe: