Duplex modern cu 5 camere si 2 bai in Ghiroda
186.990 €
Ghiroda, Timiș
Actualizat: 16 martie 2026
Descriere
Duplex modern in Ghiroda cu 5 camere si 2 bai.
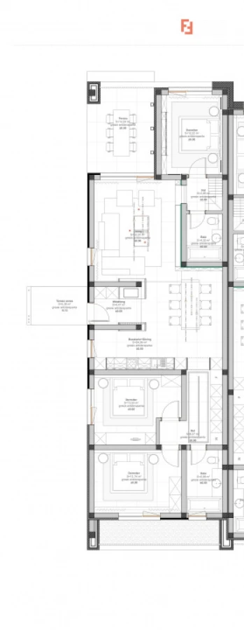
FOXFORT propune spre vanzare un duplex modern cu o suprafata utila de 141 mp si teren de 421 mp, structurat astfel:
Parter:
- Hol acces;
- Bucatarie deschisa cu posibilitate de inchidere cu sticla;
- Dinning spatios;
- Living spatioas, cu iesire direct pe terasa, cu tavan inalt si posibilitate semineu (cos existent);
- 3 Dormitore cu geamuri mari, 2 in partea din fata a casei si unul in spate, cu vedere spre gradina;
- 2 bai, una cu cada si una cu dus;
- Terasa acoperita de 14 mp;
- Camara.
Mansarda:
- Hol;
- Dormitor/Birou cu vedere spre gradina;
- Spatiu depozitare izolat si mansardat.
Detalii tehnice:
- Structura solida din beton armat, zidaria interioara exterioara cu bloguri de caramida CEMACON 25cm;
- Termoizolatia exterioara executata cu polistiren expandat EPS 80 10cm grosime;
- Tencuieli mecanizate , sape turnate mecanizat;
- Acoperis tigla Bramac;
- Incalzire in pardoseala de calitate superioara;
- Curent trifazic;
- Utilitati bucatarie de vara preinstalate in dreptul terasei;
- Geamuri Barrier PREMIUM , 4 anotimpuri, (tripane, 3 garnituri).
Imobilul dispune de toate utilitatile.
Pret:
- 186.990€ - interior la alb (zugravit, fara usi, pardoseala si bai nemobilate) + comisionul standard al agentiei.
- 219.990€ - finisat + comisionul standard al agentiei.
Se accepta ca si modalitate de plata surse proprii sau credit bancar.
ID intern V9524
Trimite acum link-ul unui prieten pe:
Contactează vânzătorul
Bumbes Paul
Companie
Pe ZUP din 12 ianuarie 2026
Localizare
Ați vizualizat anunțul: Duplex modern cu 5 camere si 2 bai in Ghiroda
Localizare
Ați vizualizat anunțul: Duplex modern cu 5 camere si 2 bai in Ghiroda
Bumbes Paul
Companie
186.990 €
Bumbes Paul
Pe ZUP din 12 ianuarie 2026
Trimite acum link-ul unui prieten pe: