Service auto la cheie de vanzare zona Turnisor Sibiu

Service auto la cheie de vanzare zona Turnisor Sibiu - 1
1 / 4

850.000 €

Sibiu, Sibiu

Actualizat: 16 decembrie 2025

Descriere

De vanzare afacere la cheie in Sibiu zona Turnisor care functioneaza de peste 20 de ani, fiind specializata in intretinerea si repararea autoturismelor.

Se preia cu autorizatie de la Registrul Auto Roman pentru reparatii si intretinere la toate marcile de autoturisme.

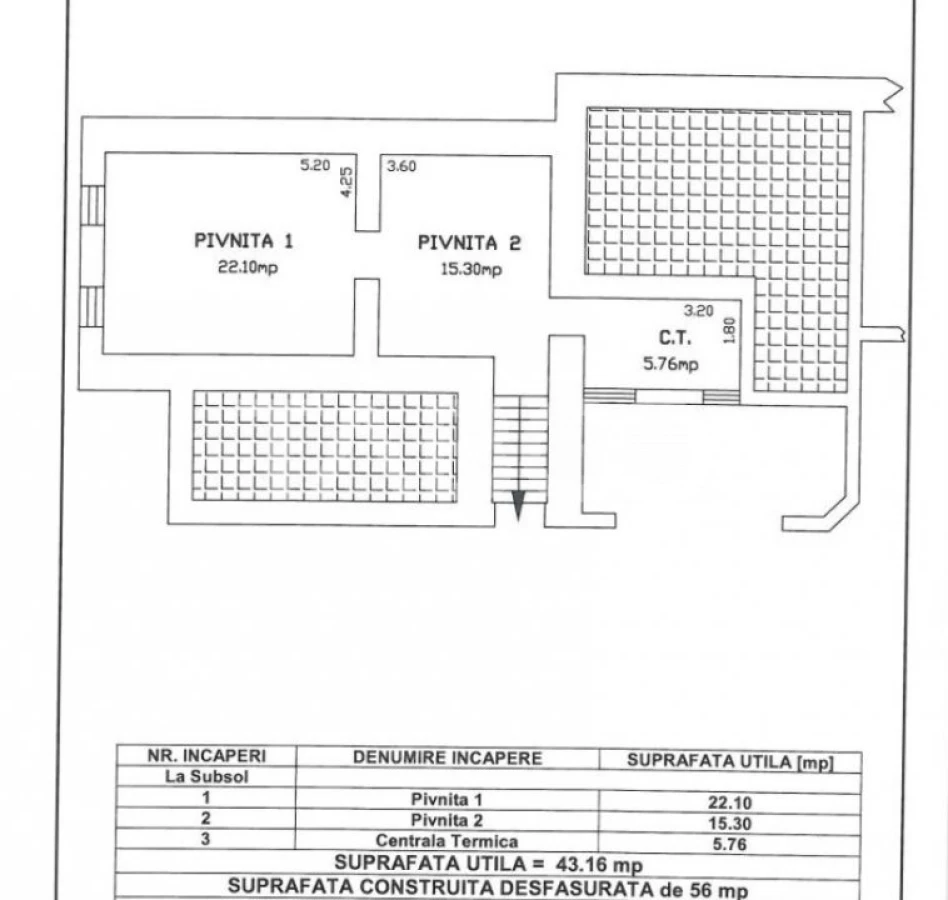
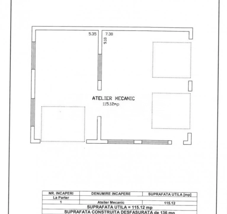
Afacerea este situata in zona Turnisor din Sibiu, complet echipata avand o suprafata utila de 405 mp iar suprafata totala cu teren este de 1084 mp cu toate autorizatiile pentru a functiona legal cu un portofoliu larg de clienti datorita vechimii de peste 20 ani.

Acesta este echipat cu 3 elevatoare, testere auto de ultima generatie si tot ceea ce este necesar pentru un service auto de a fi functional.

Proprietatea dispune de 12 incaperi, 7 bai si 2 terase,proiect pentru panouri solare si acoperis nou.

Separat de service-ul auto se afla si un magazin de piese auto, magazii, vestiare, depozite, grupuri sanitare si pivnite.



Pret: 850.000€
Cod ofertă / ID: P21701

Trimite acum link-ul unui prieten pe:

Contactează vânzătorul

Avatar Turcu Sebastian

Turcu Sebastian

Companie

Pe ZUP din 30 septembrie 2025

Trebuie să te autentifici pentru a putea trimite mesaj
Vezi toate anunțurile utilizatorului

Localizare

Sibiu, Sibiu

Ați vizualizat anunțul: Service auto la cheie de vanzare zona Turnisor Sibiu