Spatiu comercial de 149,59 mp utili - Mosnita Noua - Oportunitate investitie
196.561 €
Moșnița Nouă, Timiș
Actualizat: 12 februarie 2026
Descriere
Oportunitate de investitie, spatiu comercial de vanzare 149,59 mp utili - Mosnita Noua.
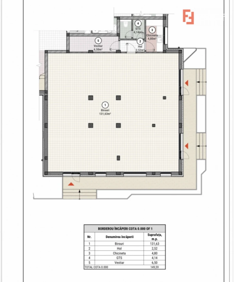
FOXFORT propune spre vanzare spatiu comercial, situat in localitatea Mosnita Noua, aflat la parter intr-un bloc cu regim de inaltime pe Parter + 2 Etaje. Anul constructiei 2025, structura din beton, material zidarie caramida. Suprafata utila de 149,59 mp. Incalzirea se realizeaza prin intermediul pompei de caldura prin pardoseala. Sunt disponibile mai multe variante cu diferite suprafete.
Spatiul dispune de:
- sala de sedinte;
- chicineta;
- 2 grupuri sanitare;
- hol.
Finisajele interioare sunt moderne:
- Usa intrare: PVC;
- Usi interioare: celulare;
- Tamplarie ferestre: pvc;
- Podele: gresie.
Pretul este de 196.561 € - COMISION 0%.
Se accepta ca si modalitate de plata surse proprii sau credit bancar.
Indicator performanta energetica: Clasa A
ID intern: V9237
Trimite acum link-ul unui prieten pe:
Contactează vânzătorul
Usurelu Nicu
Companie
Pe ZUP din 12 ianuarie 2026
Localizare
Ați vizualizat anunțul: Spatiu comercial de 149,59 mp utili - Mosnita Noua - Oportunitate investitie
Localizare
Ați vizualizat anunțul: Spatiu comercial de 149,59 mp utili - Mosnita Noua - Oportunitate investitie
Usurelu Nicu
Companie
196.561 €
Usurelu Nicu
Pe ZUP din 12 ianuarie 2026
Trimite acum link-ul unui prieten pe: