Apartament 2 camere 58 mpu mobilat si utilat premium Doamna Stanca

Apartament 2 camere 58 mpu mobilat si utilat premium Doamna Stanca - Video
1 / 11

134.500 €

Sibiu, Sibiu

Actualizat: 19 martie 2026

Descriere

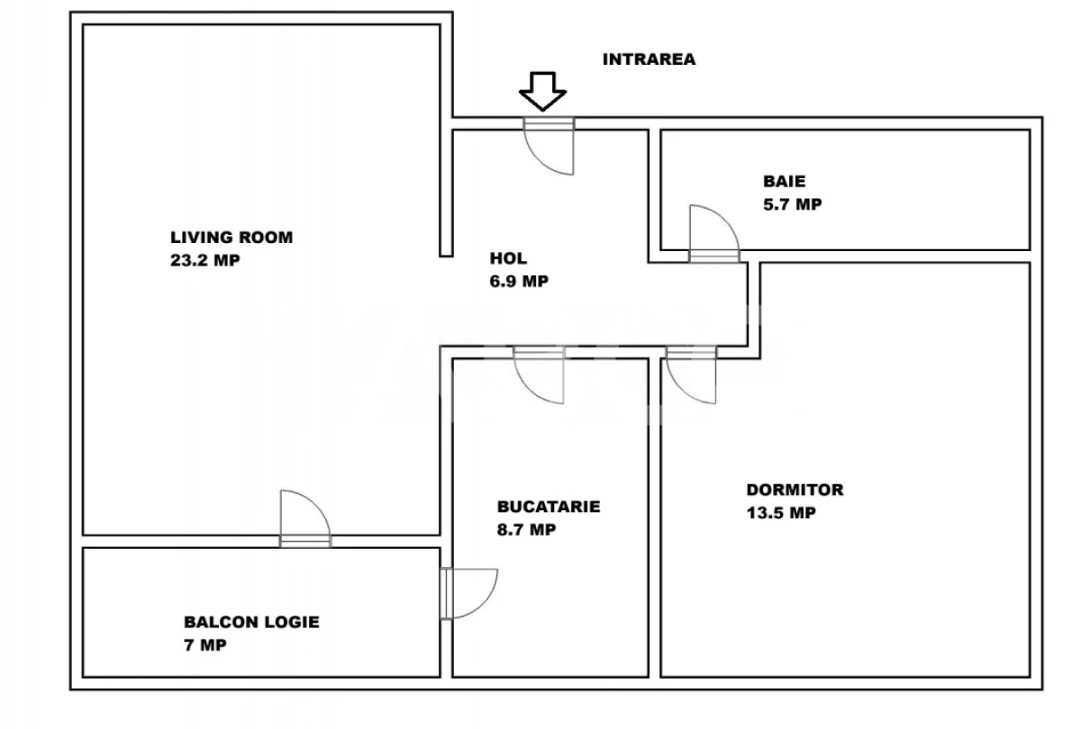
Apartament 2 camere de vanzare, decomandat, 58 mpu, zona Doamna Stanca, Sibiu. 
     
Avantaje majore ale acestui apartament:
• Camerele decomandate cu bucataria separata
• Etajul 8 cu balcon tip logie, vedere spre munti
• Balcon tip logie

TABOO Imobiliare propune un apartament de vanzare cu 2 camere, decomandat, situat in localitatea Sibiu, zona Doamna Stanca, aflat la etajul 8 intr -un imobil tip bloc cu regim de inaltime pe Parter + 9 Etaje; anul constructiei 2023, structura caramida. Suprafata utila de 58 mp + balcon de 7 mp.

Apartamentul este structurat astfel:
• Hol de compartimentare;
• Bucatarie separata;
• Baie cu dus;
• Living cu balcon;
• Dormitor;
• Dressing;

Finisajele interioare sunt de lux:
• Usa intrare: metal;
• Usi interioare: celulare;
• Tamplarie ferestre: pvc, termopan;
• Pereti: vopsea lavabila, faianta;
• Podele: parchet, gresie.

Utilitati si dotari:
• Bucatarie: mobilata, utilata;
• Mobilat: complet;
• Utilitati: curent electric, apa, canalizare, gaz, catv, telefon, acces internet, fibra optica;
• Izolatii: exterior, bloc izolat termic;
• Contorizare: apometre, contor gaz, contor curent electric;
• Caracteristici bloc: videointerfon, supraveghere video, lift.

Apartamentul se vinde mobilat si utilat cu: plita electrica, cuptor, hota, frigider cu congelator.

Incalzirea se realizeaza prin centrala proprie, calorifere si dispune de sistem de climatizare (A.C.). 

Se accepta ca si modalitate de plata surse proprii sau credit bancar.

Pret: 134.500€
Cod ofertă / ID: P26337

Trimite acum link-ul unui prieten pe:

Contactează vânzătorul

Avatar TABOO.ro

TABOO.ro

Companie

Pe ZUP din 30 septembrie 2025

Trebuie să te autentifici pentru a putea trimite mesaj
Vezi toate anunțurile utilizatorului

Localizare

Sibiu, Sibiu

Ați vizualizat anunțul: Apartament 2 camere 58 mpu mobilat si utilat premium Doamna Stanca